Kuhles Rollladenbau


seit 1903

Innen - Jalousien

Typenbeispiele


Innen-Jalousie / Schnurzug / Acryl-Wendestab / auch Seitenführung möglich / Lamellenbreite 16, 25, 35 mm / Sonderform mit geschlossenem Oberkasten
auch mit Perlkette, Kurbel oder E-Antrieb lieferbar. Zahlreiche Farben, auch gelocht oder schwarz/silber.

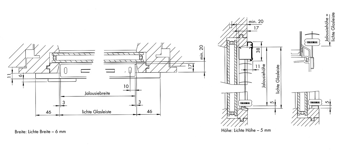
Verbund-Jalousie; Einbau zwischen den Scheiben / Schnurzug / Wendestab / auch Seitenführung möglich / Lamellenbreite 16, 25, 35 mm / Zahlreiche Farben, auch gelocht oder schwarz/silber.



Glasfalz - Jalousie; Einbau im Glasfalz / Perlkette / Bedienung neben dem Lamellenbereich / sehr elegante Lösung / Neuentwicklung für gehobene Ansprüche / verdeckte Montage / Seitenführung für Kippfenster / Oberkopf farblich passend lackiert.

Übersicht        zurück                                                                                                         © F. Kuhles 2000